단독주택 5704 144 Street Northwest CAD$780,000
| 업체/이름 | Royal Lepage Arteam Realty | ||
|---|---|---|---|
| 연락처 | 이메일 |
| 매물형태 | 매매 | 입주가능일 | |
|---|---|---|---|
| 주차 | 더블 가라지 | 우편번호 | T6H 4H4 |
| 옵션 | |||
매물 상세 설명
놀라운 매물입니다! 매우 선호도가 높은 지역에 위치한, 대대적으로 리노베이션 및 업그레이드된 벙갈로 주택입니다.
가장 눈에 띄는 특징으로는 메인 층 전체를 아우르는 서까래 노출형 아치 천장(Open beam vaulted ceilings)을 꼽을 수 있습니다. 앤티크 마감의 셰이커 스타일 메이플 캐비닛, 짙은 톤의 화강암(Granite) 카운터탑, 워크인 팬트리를 갖춘 거대한 셰프급 주방은 물론, 고급 핸드 스크레이프(Hand scraped) 엔지니어드 하드우드와 슬레이트 타일 바닥재로 품격을 높였습니다.
가스 벽난로가 있는 넓은 거실, 2개의 침실과 2개의 욕실, 서재가 딸린 멋진 덴(Den), 그리고 세탁실이 메인 층을 완벽하게 구성합니다. 특히 안방은 워크인 클로젯과 워크인 샤워 부스가 있는 스파 스타일의 전용 욕실을 갖추고 있습니다.
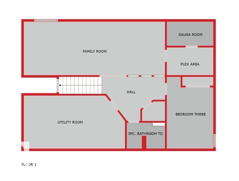
완비된 지하실에는 웻 바(Wet bar)가 있는 넓은 패밀리 룸, 세 번째 침실, 3피스 욕실, 그리고 건식 사우나까지 마련되어 있습니다. 2대 주차 가능한 단독 차고 외에 난방이 되는 별도의 작업실(Heated workshop)도 포함되어 있습니다.
뒷마당은 성숙한 나무와 다년생 식물로 아름답게 조경되어 프라이버시가 보장되며, 집 뒤편으로 이어지는 컴포지트 데크가 따뜻하게 환영하는 분위기를 자아냅니다. 브룩사이드(Brookside) 지역에서 만나보기 힘든 환상적인 기회입니다!
주요 특징 요약
구조: 벙갈로(1층 주택), 3베드룸(메인 2+지하 1), 덴(Den), 3욕실
메인 층: 서까래 노출 높은 천장, 셰프 주방(화강암 상판, 메이플 캐비닛), 하드우드 바닥
안방: 워크인 클로젯, 스파 스타일 욕실(워크인 샤워)
지하: 웻 바가 있는 패밀리 룸, 건식 사우나, 추가 침실
주차/부대시설: 2대 주차 차고 + 난방 완비 작업실(Heated Workshop)
외부: 프라이빗한 뒷마당, 컴포지트 데크, 전문 조경
구조: 벙갈로(1층 주택), 3베드룸(메인 2+지하 1), 덴(Den), 3욕실
메인 층: 서까래 노출 높은 천장, 셰프 주방(화강암 상판, 메이플 캐비닛), 하드우드 바닥
안방: 워크인 클로젯, 스파 스타일 욕실(워크인 샤워)
지하: 웻 바가 있는 패밀리 룸, 건식 사우나, 추가 침실
주차/부대시설: 2대 주차 차고 + 난방 완비 작업실(Heated Workshop)
외부: 프라이빗한 뒷마당, 컴포지트 데크, 전문 조경